Davis Hall
Davis Hall is a traditional-style residence hall on the lower campus and just steps away from academic buildings, athletic facilities, and local shops and restaurants. Some rooms have views of the Hudson River and New York City, while others overlook Stevens’ scenic campus lawn.
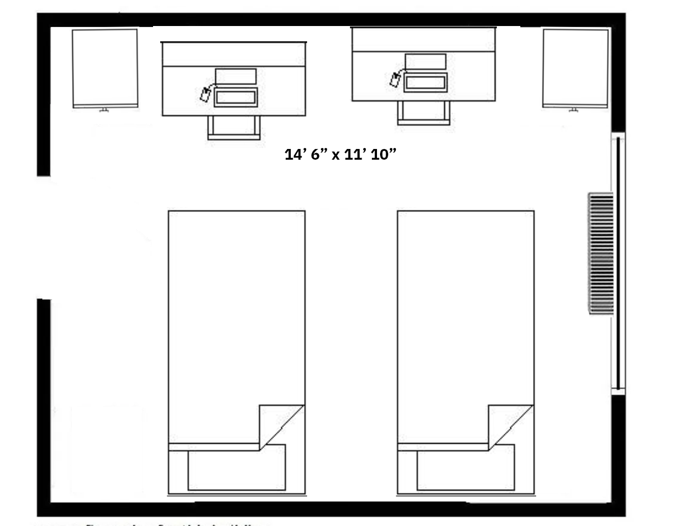
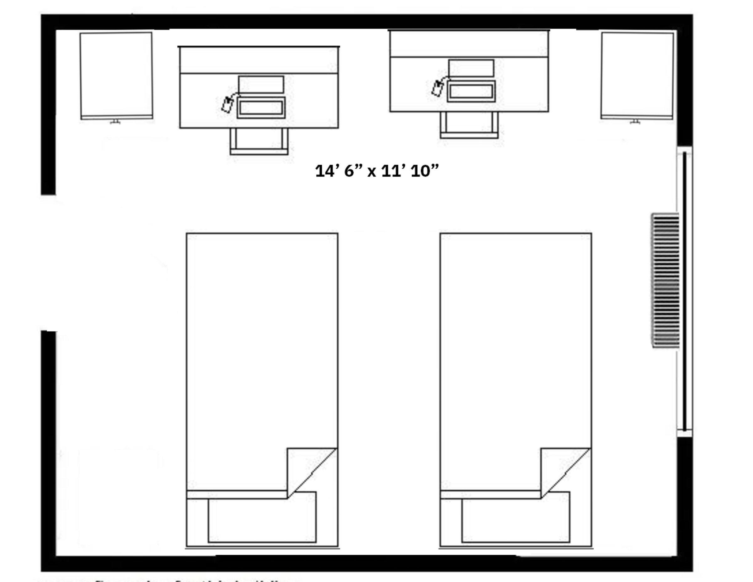
Davis Hall Fast Facts
Residents: Co-ed
Building Capacity: 204 Students
Room Types: Doubles and Deluxe Doubles (Deluxe doubles have two soft seating chairs)
Davis Hall Amenities
FULLY FURNISHED WITH EXTRA-LONG TWIN BEDS, DESKS, CHAIRS, BLINDS, WARDROBES, AND 2 TWO DRAW DRESSERS PER RESIDENT
BEDS ARE DESIGNED TO BE BUNKED OR UN-BUNKED
AIR CONDITIONING IN EVERY ROOM
FREE LAUNDRY FACILITIES IN BUILDING
FULL KITCHEN IN BUILDING
MICROFRIDGE (REFRIGERATIOR & MICROWAVE) UNIT IN EACH ROOM
WIFI THROUGHOUT BUILDING
COMMON RESTROOMS ON EACH FLOOR
BUILDING SWIPE CARD DOOR ACCESS
EMERGENCY PHONE IN BUILDING
GARBAGE AND RECYCLING CANS IN ROOM AND HALLWAYS



